Sold STC
Mayenne Place, Devizes
£250,000
Guide Price
Property Features
- ***PLEASE CALL US TO BOOK A VIEWING***
- Situated on the West Side of Devizes
- Walking Distance from Amenities
- Three Double Bedrooms and Bathroom
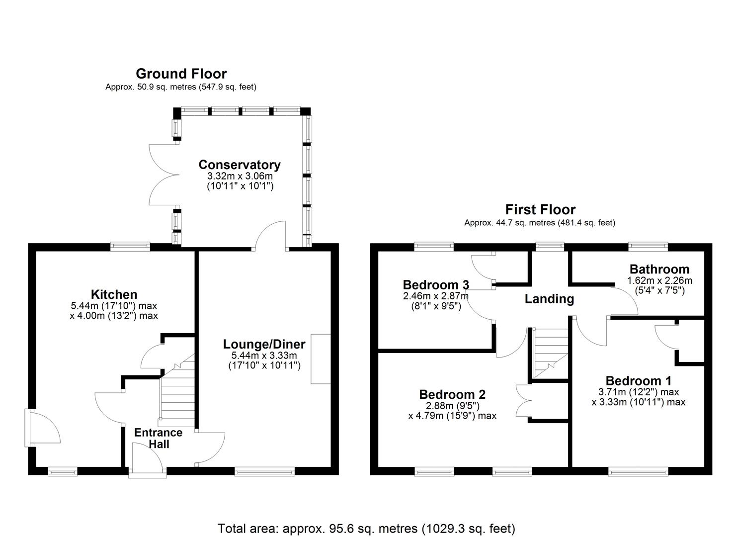
- Lounge/Diner, Large Kitchen, and Conservatory
- UPVC Double Glazed Windows
- Modern Gas-Fired Central Heating System
- Driveway Parking for Three Cars
- West-Facing Rear Garden
- Close to Kennet & Avon Canal
Property Summary
A well-proportioned three bedroom house with ample driveway parking, a conservatory, and a west-facing rear garden, within walking distance of amenities. Situated on the western outskirts of Devizes, a stone's throw away from the famous Caen Hill Locks & Caen Hill Café on the Kennet & Avon Canal.
The accommodation on the ground floor comprises a small entrance hall with stairs rising to the first floor, a spacious lounge / diner with a door leading to the conservatory, and a generous sized kitchen with a side door leading outside. On the first floor, there are three double bedrooms, and a bathroom featuring a separate shower cubicle.
Outside, there is a generous tarmac driveway, providing off-street parking for three cars. A shared side access leads to an enclosed west-facing rear garden, which is mainly laid to lawn, featuring a patio area, and two timber garden sheds. Internal viewings are by appointment only with Caulfields.
The accommodation on the ground floor comprises a small entrance hall with stairs rising to the first floor, a spacious lounge / diner with a door leading to the conservatory, and a generous sized kitchen with a side door leading outside. On the first floor, there are three double bedrooms, and a bathroom featuring a separate shower cubicle.
Outside, there is a generous tarmac driveway, providing off-street parking for three cars. A shared side access leads to an enclosed west-facing rear garden, which is mainly laid to lawn, featuring a patio area, and two timber garden sheds. Internal viewings are by appointment only with Caulfields.
























